Dom do sprzedaży 131 m2 w Dojlidach Górnych
Białystok / Dojlidy Górne-Zagórki Pokaż na mapie ›
Odświeżone: Poniedziałek, 27 Październik, 2025 13:03
825 000 zł
6298 zł/m2
Szczegóły ogłoszenia
- Kategoria: Domy / Sprzedaż
- Powierzchnia:131 m2
- Liczba pokoi:4 pokoje
- Pow. działki:643 m2
- Rynek:Pierwotny
- Rok budowy:2024
- Forma kuchni:Oddzielna
- Typ domu:Bliźniak
- Sprzedaż:Pośrednik
- Inf. dodatkowe:Balkon, Taras, Garaż
- Cena: 825 000 zł / 6298 zł/m2
- Ulica: Dojlidy Górne
Opis oferty
Z przyjemnością przedstawiamy na sprzedaż dom w zabudowie bliźniaczej, położony w malowniczej i spokojnej części Białegostoku na osiedlu Dojlidy Górne.To idealne miejsce dla osób poszukujących komfortowego domu w cichej okolicy pośrodku lasu a jednak z dogodną infrastrukturą.
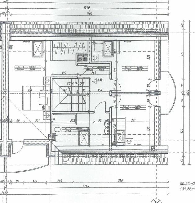
Powierzchnia domu (połowa bliźniaka) - 131,56 m2.
Powierzchnia działki, na której położona jest jedna połowa bliźniaka - 643 m2. Druga połowa położona jest na działce 763 m2.
Rozkład pomieszczeń:
Parter:
wiatrołap- 3,66 m2
komunikacja- 8,47 m2
łazienka- 5,44 m2
garaż- 17,69 m2
kotłownia- 3,65 m2
pokój dzienny- 24,88 m2
kuchnia- 8,25 m2
Poddasze:
komunikacja-10,09 m2
łazienka-7,17 m2
3 sypialnie - 20,81 m2, 11,31 m2, 10,14 m2
Do sprzedaży dwie połówki w zabudowie bliźniaczej.
Stan wykończenia:
- jedna połówka bliźniaka oferowana jest w stanie deweloperskim w cenie 825.000 zł, do niej przynależy działka o powierzchni 643 m2,
- druga w stanie surowym zamkniętym + w cenie 725.000 zł, działka o powierzchni 763 m2.
Media: studnia głębinowa, prąd
Polecamy i zapraszamy na prezentację!
W celu uzyskania większej ilości informacji prosimy o kontakt telefoniczny.
tel: 884_844_511
Gwarancja bezpieczeństwa - nasze transakcje są ubezpieczone; numer licencji pośrednika w obrocie nieruchomościami 4277.
Podane dane mają charakter wyłącznie informacyjny i winny być traktowane jako zaproszenie do zawarcia umowy. Informacja nie stanowi oferty w rozumieniu art.66 KC oraz innych właściwych przepisów prawnych.
Informacje umieszczone w ofertach przekazywane są przez właścicieli nieruchomości i mogą ulegać zmianom. Dokładamy wszelkich starań, aby wszystkie oferty były aktualne i odpowiadały stanowi rzeczywistemu.
Sprawdź zainteresowanie tym ogłoszeniem
Wyświetlenia
Data dodania
Ostatnio widziany
Obserwujących
Wysłane zapytania
Odsłony telefonu
Powiadom o podobnych ogłoszeniach
Lokalizacja: Białystok
Kategoria: Nieruchomości » Domy » Sprzedaż
Cena: od 701500 zł do 949000 zł Powierzchnia : od 111 m2 do 151 m2
Chcę otrzymywać powiadomienia o nowych ofertach
WEREL & FOX Joanna Werel
Konto firmowe
Na Lento.pl od 18 lut 2020
Strona użytkownika
- Wypromuj ogłoszenie
- Zgłoś naruszenie
- Drukuj ulotkę
- Edytuj/usuń ogłoszenie
- Udostępnij ogłoszenie
- Dodaj na Facebook























