Mieszkanie Białystok Słoneczny Stok, Generała Władysława Sikorskiego
Białystok / Słoneczny Stok Pokaż na mapie ›
Ogłoszenie archiwalne Wygasło: Środa, 05 Listopad, 2025 08:02
589 000 zł
9817 zł/m2
Szczegóły ogłoszenia
- Kategoria: Mieszkania / Sprzedaż
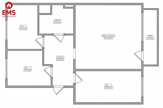
- Powierzchnia:60 m2
- Liczba pokoi:2 pokoje
- Zabudowa:Inne
- Piętro :2 piętro
- Liczba pięter:2 piętra
- Rynek:Wtórny
- Rok budowy:1970
- Sprzedaż:Pośrednik
- Cena: 589 000 zł / 9817 zł/m2
Opis oferty
Nowoczesne, jasne mieszkanie o powierzchni 60 m2, położone na 2. piętrze w niskim, kameralnym bloku na osiedlu Słoneczny Stok przy ul. Sikorskiego. Wnętrze zostało zaprojektowane z dbałością o każdy detal i wykończone wysokiej jakości materiałami.- Powierzchnia 60 m2: salon z aneksem kuchennym oraz 3 oddzielne pokoje.
- Drugie piętro w 2-piętrowym budynku - najwyższa kondygnacja.
- Duży balkon z widokiem na zielone osiedle.
- Mieszkanie po kapitalnym remoncie - gotowe do zamieszkania.
- Meble wykonane na wymiar przez stolarza.
- Spokojna, dobrze skomunikowana okolica.
Idealne dla rodziny lub osób ceniących komfort i funkcjonalność. Przestrzeń dzienna została doskonale doświetlona, a starannie zaplanowany układ pomieszczeń zapewnia wygodę na co dzień.
Zapraszam na prezentację.
:: Oferta wysłana z programu mediaRent (media-rent.eu) ::
Numer oferty: 999360/EM5/MS
Sprawdź zainteresowanie tym ogłoszeniem
Wyświetlenia
Data dodania
Ostatnio widziany
Obserwujących
Wysłane zapytania
Odsłony telefonu
Powiadom o podobnych ogłoszeniach
Lokalizacja: Białystok
Kategoria: Nieruchomości » Mieszkania » Sprzedaż
Cena: od 500500 zł do 677500 zł Powierzchnia : od 51 m2 do 69 m2
Chcę otrzymywać powiadomienia o nowych ofertach
To ogłoszenie jest archiwalne i może być nieaktualne.
- Wypromuj ogłoszenie
- Zgłoś naruszenie
- Drukuj ulotkę
- Edytuj/usuń ogłoszenie
- Udostępnij ogłoszenie
- Dodaj na Facebook




























