Projekt ogrzewania podłogowego + instrukcja
Białystok Pokaż na mapie ›
Odświeżone: Poniedziałek, 29 Grudzień, 2025 19:45
Szczegóły ogłoszenia
- Kategoria: Usługi / Usługi architektoniczne i geodezyjne
Opis oferty
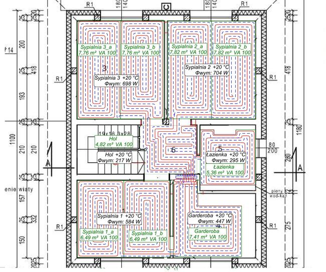
Oferuję projekt ogrzewania podłogowego osobom, które chcą same ułożyć w domu podłogówkę, bądź dla instalatorów, którzy chcą przyspieszyć swoją pracę i wykonywać podłogówkę na podstawie gotowego projektu.Jestem osobą na codzień pracującą w wykonawstwie i przy tego typu projektach więc wiem na co zwrócić uwagę, aby usprawnić prace przy układaniu podłogówki. Pętle są wyznaczane w taki sposób, aby odzwierciedlały faktycznie grzane powierzchnie - po odjęciu stałej zabudowy, kominków itd i każda była zbliżonej długości i aby w pełni wykorzystać strefy grzane przyłączami co zapewni prawidłową pracę instalacji, brak przegrzewów i niskie opory hydrauliczne.
Projekt zawiera:
- rysunek z rozmieszczeniem pętli ogrzewania podłogowego i rozdzielaczy
- wielkość rozdzielaczy, rozstaw z jakim mają być układane rury
- zestawienie potrzebnych materiałów
- tabela z danymi technicznymi - oporami na każdej pętli i nastawami na rozdzielaczach
- instrukcja jak odczytać projekt i jak układać ogrzewanie podłogowe
Mogę również doradzić w sprawie kotłowni - jaki wybrać kocioł gazowy/pelletowy/pompę ciepła - co się najbardziej opłaci i jak to ze sobą połączyć i jaki jest niezbędny osprzęt żeby wszystko sprawnie działało. Dodatkowo mogę wykonać schemat kotłowni.
*Projekt nie jest przeznaczony do dołączania do pozwolenia na budowę
Koszt projektu:
- dla domu jednorodzinnego z parterem+poddaszem o powierzchni do 120 m2: 554 zł
Jeśli masz dom o innym metrażu, sprawdź cenę na naszej stronie internetowej: https://www.ekosferastore.pl/
Więcej informacji udzielę telefonicznie, mailowo lub poprzez wiadomości.
Sprawdź zainteresowanie tym ogłoszeniem
Wyświetlenia
Data dodania
Ostatnio widziany
Obserwujących
Wysłane zapytania
Odsłony telefonu
EKOSFERAstore
Konto firmowe
Na Lento.pl od 16 sie 2021
Strona użytkownika
- Wypromuj ogłoszenie
- Zgłoś naruszenie
- Drukuj ulotkę
- Edytuj/usuń ogłoszenie
- Udostępnij ogłoszenie
- Dodaj na Facebook









